Coursework_California College of the Arts_MArch_Fall 2015
Instructor_Neeraj Bhatia


The wall is the architectural mediator between opposing activities, yet allows them to occur in a very close proximity. Delimited States explores that dialectic architecturally by using the wall as a threshold between the individual and collective realms. This wall is a framework to plug in, on one side, single occupant units that purposely articulate unique rotations and views, and on the other consolidates the shared living programs with a smooth, cohesive façade and that engages the tenants together into something bigger than themselves. My hypothesis is that with this aggressive confrontation, both realms are clarified—where individuals become more aware of themselves, as well as their relationship back to a larger collective.

At the scale of the site, the wall laps back on itself to create a range of relationships between the private and public faces and the city. The operation of the bend allows the private and public realms to both hold an urban presence, and also structure interior shared courtyards. Within the southern courtyard, a public open lawn is designed for group activity. And, within the northern courtyard, smaller spaces are delineated by the landscape to provide a more intimate program. A path then spans these two realms to structure a flow from the city through one form of the collective, and across the threshold of the building itself to the other. Adjacent to this public right of way, the ground plane is pushed down to structure larger square footage classroom, gathering and events spaces for the local community.



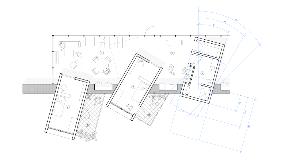
The typology consists of a series of single resident units that push, pull and rotate along the wall, delimiting the spaces of the shared realm. Depending upon the distance a unit is pushed or pulled, gives or takes away space from that shared realm, and it is that tension that defines smaller clusters and certain forms of sharing within a larger mega-form. Units that are pushed in more deeply are taken up by the collective realm, and become walls to separate the multiplicity of clusters. The unit itself is also rotated 15, 30, or 45 degrees, which deals with how it penetrates the wall, views context and creates outdoor space against adjacent units. Inside each clusters resident share lounge, dining, kitchen, bathroom, and storage space with 3-6 other people in that grouping. The variations in the plan produce a diversity of types where some clusters are more introverted and some more extroverted. Sectionally, these components hold the datum of the wall, creating a consistency of that section across the site. The units also cut the floor slab to create vertical relationships between shared spaces.


I envision this housing typology to cater specifically toward a constituency of local youths moving to their first home away from home. As rent prices continue to escalate in the Mission, it is near impossible for young adults to branch out on their own without leaving the neighborhood they call home, and in many cases these kids are forced out of their city. Therefore, as each of these individuals seeks to find and express his/her independence within their own private space, the architecture simultaneously engages their desire for community.
Alongside my local constituency, shared community program is provided for The Mission Neighborhood Centers: a local non-profit that operates to deliver “empowerment, cultural affirmation and personal responsibility” to local residents by providing “a continuum of educational programs and social services to the community populations most in need.” This organization works directly with local youths providing job opportunities and training as well as GED preparation classes.